




+13




+13Prodaja
Površina
Tip nekretnine
Kat
Sobe
kupaonice
Grijanje
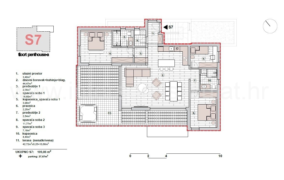
.::: Luksuzan penthouse s pogledom na more :::. Na lijepoj, uzvišenoj lokaciji s fantastičnim pogledom na more i Primošten nalazi se stambena zgrada u izgradnji. Sastoji se od 7 stambenih jedinica s predivnim terasama i parkirnim mjestom u garaži ili dvorištu. Vrhunska opremljenost uključuje: protuprovalna vrata, podno grijanje, električne podizače struje, visokokvalitetnu keramiku i sanitarije, klima uređaje, parket i komarnici u spavaćim sobama, punionicu za električne automobile… Dovršetak gradnje i moguće useljenje planirani su do kraja 2026. godine. Centar mjesta udaljen je 2km a uređena plaža 1,5km. Stambena jedinica S7 123,70 m2 predstavlja trosobni penthouse na 3. katu, sa prostranom terasom od 43m2 s jacuzzijem i garažnim mjestom od 28 m2. Obilazak nekretnine moguć je uz prethodni dogovor i rezervaciju termina (minimalno dva dana unaprijed). Molimo pri telefonskom kontaktu obavezno navesti šifru objekta (ID nekretnine). Radujemo se Vašem pozivu.

Ime agenta
Marijana Laškarin
Kontakt telefon
099/ 213 21 09ID nekretnine
2371
BN kod
4998
Objavljeno